Retour

Brinon-sur-Beuvron (58420)
58, propriété indépendante avec spacieuses dépendances attenantes.

Prix
du bien
49 000 €
réf : 1632

01
Général

58, Olcy - Propriété indépendante avec spacieuses dépendances attenantes.

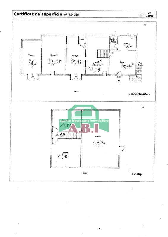
Référence : 1632 - Propriété indépendante en pierre de pays  sur 445m² de terrain. Comprenant d'un seul tenant (env 180m²) au sol. 
Pour la partie habitable (env 84m²) au RDC : séjour avec cheminée ouverte,, Cuisine, salle de bains avec WC. 
Etage : palier et 2 Chambres indépendantes. Un grenier facilement aménageable (env 49m²). CC au fuel, double vitrage (ancien et modèle récent).
 
Spacieuses dépendances attenantes (idéal pour extension env 133m² au sol) dont :  grande remise/chaufferie, grange, ancienne écurie (belle hauteur) et un garage.
Située à 5mns de Brinon sur Beuvron bourg avec commerces épicerie, boulangerie, écoles de la maternelle au CM2, transports scolaires sur place, pharmacie, vétérinaire
 
HONORAIRES CHARGE VENDEUR.
Les informations sur les risques auxquels ce bien est exposé sont disponibles sur le site Géorisques : www.georisques.gouv.fr

DPE  G (413)  -  GES G (111) (en date du 10-03-2024) -

 « logement à consommation énergétique excessive »,

 

02
Plus d'infos

  • Code postal
    58420
  • Surface habitable (m²)
    84 m²
  • surface terrain
    445 m²
  • Nombre de chambre(s)
    2
  • Nombre de pièces
    4
  • Nombre de niveaux
    1

03
Financier

  • Prix de vente honoraires TTC inclus
    49 000 €

04
Plus de détails

  • Nb de salle de bains
    1
  • Nombre de garage
    2
  • Année de construction
    1910

05
Copropriété

  • Copropriété
    NON

06
Bilan énergétique

DPE GES
Nos outils

Plus d'informations sur
le quartier

  • Commerces et santé
  • Loisirs
  • Ecoles
  • Transports
  • Pratique
Intéressé(e)
par ce bien